Une bonne circulation
C’est un des éléments clés dans la conception de votre espace intérieur, quelle que soit sa taille.
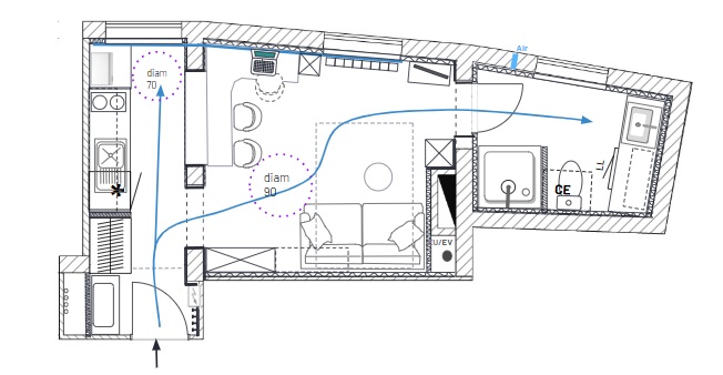
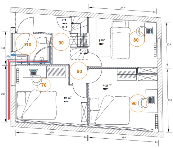
Une des choses à laquelle il faut particulièrement prêter attention pour les petits espaces, c’est cette facilité de circulation. Il faut être vigilant au mobilier, aux transitions entre les différentes pièces, à la largeur des couloirs… pour pouvoir se mouvoir sans contrainte et ne pas avoir l’impression de se trouver dans un espace étriqué.
Cela passe en partie par le choix des meubles. Toujours la même règle : petit espace = petit meuble. Privilégiez également des meubles bas pour préserver le passage aux épaules et aux hanches.
Petit espace = petits meubles.
Un peu de rondeur
Jouez avec les rondeurs, effacez les arrêtes du mobilier et des murs, en les remplaçant par des arrondis. Cela facilite la circulation là où le passage était étroit sans trop pénaliser l’espace. Visuellement, cela apporte un peu de douceur et d’un point de vue pratique, ça permet de gagner quelques précieux cm dans un passage étroit.
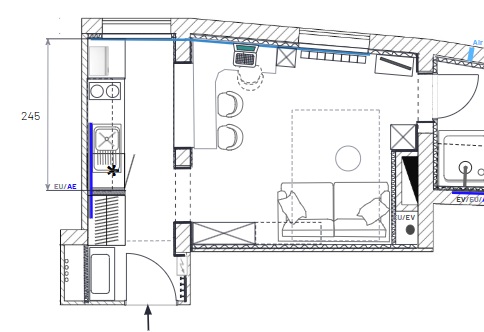
Dans le projet d’aménagement Trentesaux, le passage sous l’escalier était très juste et le couloir un peu tortueux.
En remplaçant le coin par un arrondi, la circulation est facilité et l’ensemble adouci.
Dans le même esprit, privilégiez les rondeurs dans le choix de votre mobilier, évitez les angles blessants.
Table basse lacamif.fr
Canapé Laredoute.fr
Dans la mesure du possible, ouvrez votre espace intérieur sur l’extérieur. Je suis particulier vigilent sur cet aspect lors de mes conceptions. L’idéal étant bien sûr de disposer d’un extérieur privatif mais une fenêtre sur un parc, un jardin, ou même une vue sur la ville peut suffire à cette ouverture. Veillez donc à valoriser cette vue, à ne pas l’encombrer. Jouez la continuité, le lien entre intérieur et extérieur lorsque c’est possible. Lien qui se fait par la circulation, par le mobilier ou la décoration.
La modularité
Chaque espace doit avoir une fonction, c’est une autre règle dans le conception de l’espace intérieur.
Par contre, dans un intérieur où l’espace est une denrée rare, pourquoi ne pas jouer le jeu de la modularité : à chaque espace plusieurs fonctions. C’est une façon de « désencombrer » l’espace et donc d’améliorer la circulation. Au delà de cet aspect pratique, c‘est aussi faire de votre intérieur un terrain de jeu : ouvrir une chambre sur le salon avec un principe de cloison coulissante, ou encore créer un espace repas ou cuisine partagé avec le bureau.
Aujourd’hui le mobilier se fait également modulable : table pliante, tabouret/table basse, lit escamotable…
Voyez large avec des tableaux ou photos au format panoramique (source : artbymaudsch.fr)
Agrandir visuellement une petite pièce comme une entrée.
Dans le projet d’aménagement d’un studio, j’ai prolongé le plan repas pour en faire un bureau et ainsi garder les mêmes assises. (Projet Pasquet)
L’éclairage
Pour éviter les lampadaires, lampes à poser avec les fils qui traînent au sol, optez pour les appliques ou baladeuses à brancher sur prise. Idéalement, il est bon de prévoir les sorties de fils pour ces luminaires mais c’est aujourd’hui tendance de les brancher directement sur les prises.
Profitez des multitudes de solutions (comme les rubans LED) pour éclairer les angles ou les plafonds et donner une impression d’espace.
Les bandes LED permettent de donner une impression d’espace dans des endroits pourtant étroit.
Aujourd’hui, on ne cache plus les fils, cela permet d’installer une applique ou une baladeuse sans auncun travaux (découvrez les baladeuses en porcelaine de Valérie Deloobal).
Quel que soit votre projet d'aménagement, faites appel à un architecte d'intérieur. Il est important de bien définir son projet avant d'entamer tout chantier afin d'éviter problème, dépassement de budget et au final stress et déception.
Architecte d'intérieur spécialisé dans l'optimisation de l'espace, je vous conseille et vous accompagne pour un chantier réalisé en toute sérénité.
Contactez moi ici pour échanger sur votre projet.


