Projet Merck

Rénovation et transformation d’une salle de bain.

Les clients souhaitaient rénover leur salle de bain et profiter de cette occasion pour repenser son agencement. A commencer par les toilettes plantées au milieu de cette pièce, entre le lavabo et la douche, juste devant la porte d’entrée.
L’objectif est donc de profiter de cette opportunité pour faire des toilettes indépendantes.

toilettes et meuble vasque
salle de bain actuelle

Outre les toilettes au milieu de la salle de bain, il y a peu de rangement actuellement.

douche de la salle de bain

la douche de 90×90 est un peu juste.

radiateur de la salle de bain

On conservera le même système d’étendage du linge mais avec du rangement supplémentaire.

Le challenge : isoler les toilettes du reste de la salle de bain.

Cela doit se faire sans que la salle de bain soit pénalisée, c’est à dire garder une belle douche, voir l’agrandir, avoir au moins autant de rangement qu’aujourd’hui, conserver un espace pour étendre le linge, le tout avec un meuble double vasques. La circulation doit bien sûr rester au centre des attentions.

état des lieux de la salle de bain

Le cahier des charges :

  • Aménager une plas grande douche qu’aujourd’hui, type douche à l’italienne.
  • Avoir un peu plus de rangement et conserver un meuble double vasques.
  • Isoler les toilettes du reste de la salle de bain ou tout au moins les mettre un peu à l’écart et avoir un peu plus d’intimité.

  • Conserver un espace de séchage pour le linge au moins équivalent à aujourd’hui.

Le projet d’aménagement intérieur

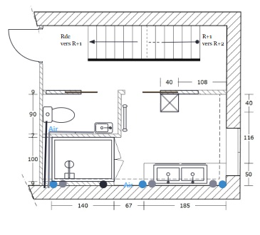
La contrainte des évacuations était forte pour le repositionnement des toilettes. je les ai déplacées vers le couloir afin de leur donner un accès direct et différent de la salle de bain. Les évacuations passeront dans le plafond du salon situé en dessous. La douche viendra « s’intégrer » entre les toilettes et le mur, aucune espace n’est perdu de cette façon et cela donne une grande douche de 100x140cm. Autre avantage, nous récupérons la porte à galandage existante pour les toilettes.

Une entrée spécifique pour la salle de bain sera réalisée. Les clients disposeront de 2 vasques avec un large plan de dépose. Du rangement sera aménagé sous ce plan et une colonne de 40 viendra compléter cet espace de rangement.
Une place est réservée à l’étendoir pour le séchage du linge.

plan du projet d'aménagement de la salle de bain

Travaux à venir

IDM-Architecture, agence d'architecture intérieure basée sur Lille.

Je suis architecte d'intérieur spécialisé dans l'optimisation de l'espace. Je vous accompagne dans la réalisation de votre projet d'aménagement intérieur, de la conception de votre aménagement intérieur à la réalisation des travaux. Etat des lieux complet de votre habitation, réalisation de plusieurs propositions de plan correspondant à vos besoins, assistance à maîtrise d'ouvrage. Je vous accompagne de A à Z dans votre projet, pour en faire un projet réussi et sans stress. Pour la réalisation des travaux, je travaille exclusivement avec un réseau d'artisans de confiance.